lakás a Szalay utcában
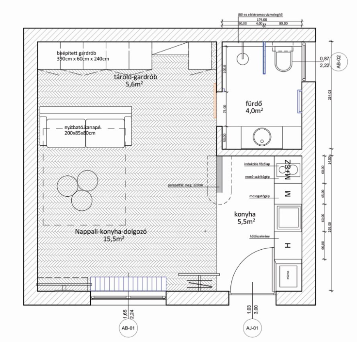
Egy kiadásra tervezett lakás a Parlament szomszédságában. Kis tér, több funkció – a gazdaságos térkialakítás kulcsfontosságú volt ennél a munkánál.
flat in Szalay Street
A flat designed for rent in Szalay Street, next to Parliament. A small space for multiple purposes – economical design was key with this project.
Fotók: Gera ingatlan
